- Тип конструкции направляющих
- Монтажная длина
- Тип выдвижения
- Наличие доводчика
- Наличие толкателя
- Наличие толкателя и доводчика вместе
- Несущая способность (на пару)
- Минимальная высота проёма
- Цвет изделия
- Тип продукции
Все характеристики и описание
- Тип конструкции направляющих
- Монтажная длина
- Тип выдвижения
- Наличие доводчика
- Наличие толкателя
- Наличие толкателя и доводчика вместе
- Несущая способность (на пару)
- Минимальная высота проёма
- Цвет изделия
- Тип продукции
Все характеристики и описание
-
В комплекте
Левая и правая
-
Высота боковин
150 мм
-
Количество в упаковке
10
-
Вес упаковки
11.4 кг
-
Объем упаковки
0.0165375 м.куб.
Все характеристики и описание
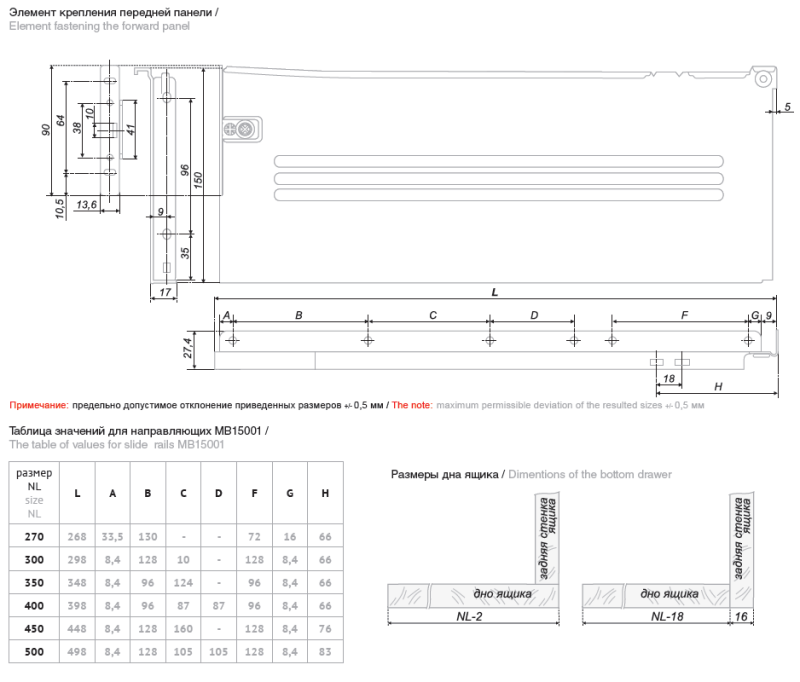
MB15001 — направляющие для изготовления выдвижных ящиков, с регулировкой фасада по высоте (+/-2 мм), с роликовой направляющей неполного выдвижения, с самозатягиванием, двойным остановом и защитой от выкатывания. Для ящиков с высотой боковой стенки 150 мм.
Розн. цена за 1 компл
- € 9,499
- 892,16 ₽
- $ 11,060
Розн. цена за 1 компл
- € 9,499
- 892,16 ₽
- $ 11,060
Системы выдвижения MB15001W/400
В наличии на складе Екатеринбург – 1487 компл
1487 компл в наличии на складе Способы получения заказа
Посмотреть на всех складах
Быстрый просмотр

W - Белый / Направляющие с одностенными металлическими боковинами MB
- Тип конструкции направляющих
- Монтажная длина
- Тип выдвижения
- Наличие доводчика
- Наличие толкателя
- Наличие толкателя и доводчика вместе
- Несущая способность (на пару)
- Минимальная высота проёма
- Цвет изделия
- Тип продукции
-
В комплекте
Левая и правая
-
Высота боковин
86 мм, 86 мм
-
Количество в упаковке
10
-
Вес упаковки
8.28 кг
-
Объем упаковки
0.01089375 м.куб.
Все характеристики и описание
Розн. цена за 1 компл
- € 7,085
- 665,49 ₽
- $ 8,250
Быстрый просмотр

Направляющие с одностенными металлическими боковинами MB / GR - Серый
- Тип конструкции направляющих
- Монтажная длина
- Тип выдвижения
- Наличие доводчика
- Наличие толкателя
- Наличие толкателя и доводчика вместе
- Несущая способность (на пару)
- Минимальная высота проёма
- Цвет изделия
- Тип продукции
-
В комплекте
Левая и правая
-
Высота боковин
86 мм, 86 мм
-
Количество в упаковке
10
-
Вес упаковки
8.28 кг
-
Объем упаковки
0.01089375 м.куб.
Все характеристики и описание
Розн. цена за 1 компл
- € 7,085
- 665,49 ₽
- $ 8,250
- Характеристики
-
- Тип конструкции направляющих
- Монтажная длина
- Тип выдвижения
- Наличие доводчика
- Наличие толкателя
- Наличие толкателя и доводчика вместе
- Несущая способность (на пару)
- Минимальная высота проёма
- Цвет изделия
- Тип продукции
-
В комплекте
Левая и правая
-
Высота боковин
150 мм
-
Количество в упаковке
10
-
Вес упаковки
11.4 кг
-
Объем упаковки
0.0165375 м.куб.
Все характеристики и описание
- Описание MB15001
MB15001 — направляющие для изготовления выдвижных ящиков, с регулировкой фасада по высоте (+/-2 мм), с роликовой направляющей неполного выдвижения, с самозатягиванием, двойным остановом и защитой от выкатывания. Для ящиков с высотой боковой стенки 150 мм.
- Документация
-
Документация
- Наличие
-
В наличииНаличие может измениться в любой момент. Вы можете оформить интернет-заказ независимо от филиала отгрузки. Также вы можете обратиться к дилерам.ГородНаличиеКогда забратьРежим работы
Москва
рп Томилино, 23-й км. Новорязанского шоссе, 21Наличие155Когда забратьНа следующий
рабочий деньРежим работыПН-ПТ с 8:30 до 17:30
Выписка документов до 17:00. Выдача заказов до 17:20Екатеринбург
ул. Региональная, 1Наличие1487Когда забратьНа следующий
рабочий деньРежим работыПН-ПТ с 8:00 до 16:30
Выдача заказов до 16:45Краснодар
пос. Берёзовый, ул. Скульптора Коломойцева, 73Наличие54Когда забратьНа следующий
рабочий деньРежим работыПН-ПТ с 8:30 до 17:20
Склад с 8.30 до 17.30Нижний Новгород
Базовый проезд, 2Наличие0Когда забрать-
Режим работыПН-ПТ с 8:30 до 17:30
Выписка документов до 17:00 Выдача заказов до 17:00Новосибирск
ул. Николая Грицюка, 20Наличие0Когда забрать-
Режим работыПН-ПТ с 8:00 до 17:00