- Линейка
- Тип конструкции направляющих
- Монтажная длина
- Наличие толкателя
- Наличие толкателя и доводчика вместе
- Минимальная высота проёма
- Форма боковин
- Цвет изделия
- Тип продукции
Все характеристики и описание
- Линейка
- Тип конструкции направляющих
- Монтажная длина
- Наличие толкателя
- Наличие толкателя и доводчика вместе
- Минимальная высота проёма
- Форма боковин
- Цвет изделия
- Тип продукции
Все характеристики и описание
-
В комплекте
Левая и правая
-
Цвет RAL
RAL7038 Agate grey
-
Количество в упаковке
5
-
Вес упаковки
11.346 кг
-
Объем упаковки
0.021816125 м.куб.
Все характеристики и описание
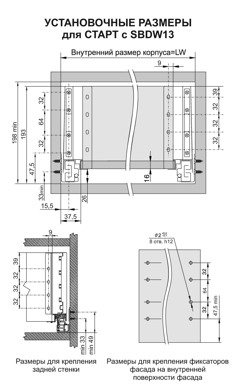
SBDW13 – прямые боковые стенки (левая и правая) для сборки мебельного высокого ящика системы выдвижения СТАРТ высотой 167 мм с минимальной высотой проёма 198 мм. Прямые боковины отличает от традиционных эстетически более красивая лаконичная форма, которая, кроме этого позволяет экономить внутреннее пространство ящика. Толщина прямых боковин – 12,8 мм.
Также, выдвижной мебельный ящик с прямыми боковинами получается более глубоким и монолитным. Ящик со сплошными боковыми стенками, без рейлингов, более удобен для хранения разных по габаритам, форме и длине предметов. Более высокие боковины лучше удерживают ряды из плоских тарелок, крышек, не позволяя им заваливаться на бок и падать в пространство между рейлингами и корпусом мебели. При открытии и закрытии модуля с высокими сплошными боковинами половники, скалки, шампуры и другая длинногабаритная утварь не будет попадать в пространство между рейлингами и корпусом мебели и, соответственно, не помешает его движению.
Боковины с держателями задней стенки и фиксаторами фасада выполняют защитно-декоративную функцию, а также соединяют между собой основные элементы выдвижного ящика: передняя фасадная панель, задняя стенка и дно. Кроме этого, боковины выполняют функцию регулировки фасада выдвижного ящика, функцию подвижного крепления выдвижного ящика к опорной направляющей скрытого монтажа DB8181, предварительно установленной на боковой стенке непосредственно мебельного изделия и защищают от непреднамеренного снятия при полном выдвижении механизма. Боковые стенки SBDW13, покрытые порошковой эмалью методом распыления с последующей сушкой при температуре 90 градусов, прослужат весь эксплуатационный срок, даже в условиях агрессивной кухонной среды. В комплект также входят декоративные заглушки с логотипом BOYARD.
Прямые боковины для высокого ящика представлены в вариантах монтажной длины от 300 до 500 мм в трёх популярных цветах: графитовый, белый и серый.
Для сборки выдвижного мебельного ящика с помощью боковин SBDW13 необходимо самостоятельно изготовить фасад, заднюю стенку и дно ящика с учетом собственных пожеланий и потребностей по ширине и высоте готового ящика.
Высоту выдвижного мебельного ящика можно увеличить, используя прямоугольные рейлинги SBR09 и держатели рейлинга SBH40, в том количестве, ящик какой высоты вам необходим.
Внимание, важная информация!
Групповая коробка боковых стенок SBDW11 включает 5 комплектов боковин, а также 5 отдельных пакетов с держателями фасада, декоративными заглушками и необходимым крепежом.
В случае приобретения боковых стенок в розницу следует обязательно помнить, что для каждого приобретённого комплекта боковин вам обязательно должны положить пакетик с комплектующими и крепежом. Обязательно проверяйте наличие необходимого количества пакетиков с комплектующими при получении товара, а также не забывайте о них при распаковке вашего заказа.
Розн. цена за 1 компл
- € 12,403
- 1 225,03 ₽
- $ 14,470
Розн. цена за 1 компл
- € 12,403
- 1 225,03 ₽
- $ 14,470
Прямые боковые стенки СТАРТ высокие SBDW13/GR/400
В наличии на складе Екатеринбург – 2 компл
2 компл в наличии на складе Способы получения заказа
Посмотреть на всех складах
Быстрый просмотр


Прямая форма боковин / Системы выдвижения с двойными металлическими боковинами / GR - Серый
- Линейка
- Тип конструкции направляющих
- Монтажная длина
- Наличие толкателя
- Наличие толкателя и доводчика вместе
- Минимальная высота проёма
- Форма боковин
- Цвет изделия
- Тип продукции
-
В комплекте
Левая и правая
-
Цвет RAL
RAL7038 Agate grey
-
Количество в упаковке
10
-
Вес упаковки
15.772 кг
-
Объем упаковки
0.031250125 м.куб.
Все характеристики и описание
Розн. цена за 1 компл
- € 10,954
- 1 081,95 ₽
- $ 12,780
Быстрый просмотр


W - Белый / Прямая форма боковин / Системы выдвижения с двойными металлическими боковинами
- Линейка
- Тип конструкции направляющих
- Монтажная длина
- Наличие толкателя
- Наличие толкателя и доводчика вместе
- Минимальная высота проёма
- Форма боковин
- Цвет изделия
- Тип продукции
-
В комплекте
Левая и правая
-
Цвет RAL
RAL9003 Signal white
-
Количество в упаковке
10
-
Вес упаковки
15.772 кг
-
Объем упаковки
0.031250125 м.куб.
Все характеристики и описание
Розн. цена за 1 компл
- € 10,954
- 1 081,95 ₽
- $ 12,780
Быстрый просмотр


GRPH - Графитовый / Прямая форма боковин / Системы выдвижения с двойными металлическими боковинами
- Линейка
- Тип конструкции направляющих
- Монтажная длина
- Наличие толкателя
- Наличие толкателя и доводчика вместе
- Минимальная высота проёма
- Форма боковин
- Цвет изделия
- Тип продукции
-
В комплекте
Левая и правая
-
Цвет RAL
RAL7012 Basalt grey
-
Количество в упаковке
10
-
Вес упаковки
15.772 кг
-
Объем упаковки
0.031250125 м.куб.
Все характеристики и описание
Розн. цена за 1 компл
- € 9,643
- 952,43 ₽
- $ 11,250
- Характеристики
-
- Линейка
- Тип конструкции направляющих
- Монтажная длина
- Наличие толкателя
- Наличие толкателя и доводчика вместе
- Минимальная высота проёма
- Форма боковин
- Цвет изделия
- Тип продукции
-
В комплекте
Левая и правая
-
Цвет RAL
RAL7038 Agate grey
-
Количество в упаковке
5
-
Вес упаковки
11.346 кг
-
Объем упаковки
0.021816125 м.куб.
Все характеристики и описание
- Описание SBDW13
SBDW13 – прямые боковые стенки (левая и правая) для сборки мебельного высокого ящика системы выдвижения СТАРТ высотой 167 мм с минимальной высотой проёма 198 мм. Прямые боковины отличает от традиционных эстетически более красивая лаконичная форма, которая, кроме этого позволяет экономить внутреннее пространство ящика. Толщина прямых боковин – 12,8 мм.
Также, выдвижной мебельный ящик с прямыми боковинами получается более глубоким и монолитным. Ящик со сплошными боковыми стенками, без рейлингов, более удобен для хранения разных по габаритам, форме и длине предметов. Более высокие боковины лучше удерживают ряды из плоских тарелок, крышек, не позволяя им заваливаться на бок и падать в пространство между рейлингами и корпусом мебели. При открытии и закрытии модуля с высокими сплошными боковинами половники, скалки, шампуры и другая длинногабаритная утварь не будет попадать в пространство между рейлингами и корпусом мебели и, соответственно, не помешает его движению.
Боковины с держателями задней стенки и фиксаторами фасада выполняют защитно-декоративную функцию, а также соединяют между собой основные элементы выдвижного ящика: передняя фасадная панель, задняя стенка и дно. Кроме этого, боковины выполняют функцию регулировки фасада выдвижного ящика, функцию подвижного крепления выдвижного ящика к опорной направляющей скрытого монтажа DB8181, предварительно установленной на боковой стенке непосредственно мебельного изделия и защищают от непреднамеренного снятия при полном выдвижении механизма. Боковые стенки SBDW13, покрытые порошковой эмалью методом распыления с последующей сушкой при температуре 90 градусов, прослужат весь эксплуатационный срок, даже в условиях агрессивной кухонной среды. В комплект также входят декоративные заглушки с логотипом BOYARD.
Прямые боковины для высокого ящика представлены в вариантах монтажной длины от 300 до 500 мм в трёх популярных цветах: графитовый, белый и серый.
Для сборки выдвижного мебельного ящика с помощью боковин SBDW13 необходимо самостоятельно изготовить фасад, заднюю стенку и дно ящика с учетом собственных пожеланий и потребностей по ширине и высоте готового ящика.
Высоту выдвижного мебельного ящика можно увеличить, используя прямоугольные рейлинги SBR09 и держатели рейлинга SBH40, в том количестве, ящик какой высоты вам необходим.
Внимание, важная информация!
Групповая коробка боковых стенок SBDW11 включает 5 комплектов боковин, а также 5 отдельных пакетов с держателями фасада, декоративными заглушками и необходимым крепежом.
В случае приобретения боковых стенок в розницу следует обязательно помнить, что для каждого приобретённого комплекта боковин вам обязательно должны положить пакетик с комплектующими и крепежом. Обязательно проверяйте наличие необходимого количества пакетиков с комплектующими при получении товара, а также не забывайте о них при распаковке вашего заказа.- Документация
-
Документация
- Наличие
-
В наличииНаличие может измениться в любой момент. Вы можете оформить интернет-заказ независимо от филиала отгрузки. Также вы можете обратиться к дилерам.ГородНаличиеКогда забратьРежим работы
Москва
рп Томилино, 23-й км. Новорязанского шоссе, 21Наличие0Когда забрать-
Режим работыПН-ПТ с 8:30 до 17:30
Выписка документов до 17:00. Выдача заказов до 17:20Екатеринбург
ул. Региональная, 1Наличие2Когда забратьНа следующий
рабочий деньРежим работыПН-ПТ с 8:00 до 16:30
Выдача заказов до 16:45Краснодар
пос. Берёзовый, ул. Скульптора Коломойцева, 73Наличие0Когда забрать-
Режим работыПН-ПТ с 8:30 до 17:20
Склад с 8.30 до 17.30Нижний Новгород
Базовый проезд, 2Наличие0Когда забрать-
Режим работыПН-ПТ с 8:30 до 17:30
Выписка документов до 17:00 Выдача заказов до 17:00Новосибирск
ул. Николая Грицюка, 20Наличие0Когда забрать-
Режим работыПН-ПТ с 8:00 до 17:00